Let
£1,500 per month

1 bed flat to rent in Silverdale, Sydenham, London, SE26 4SQ (ref: 19029)

Shortlist

Key features

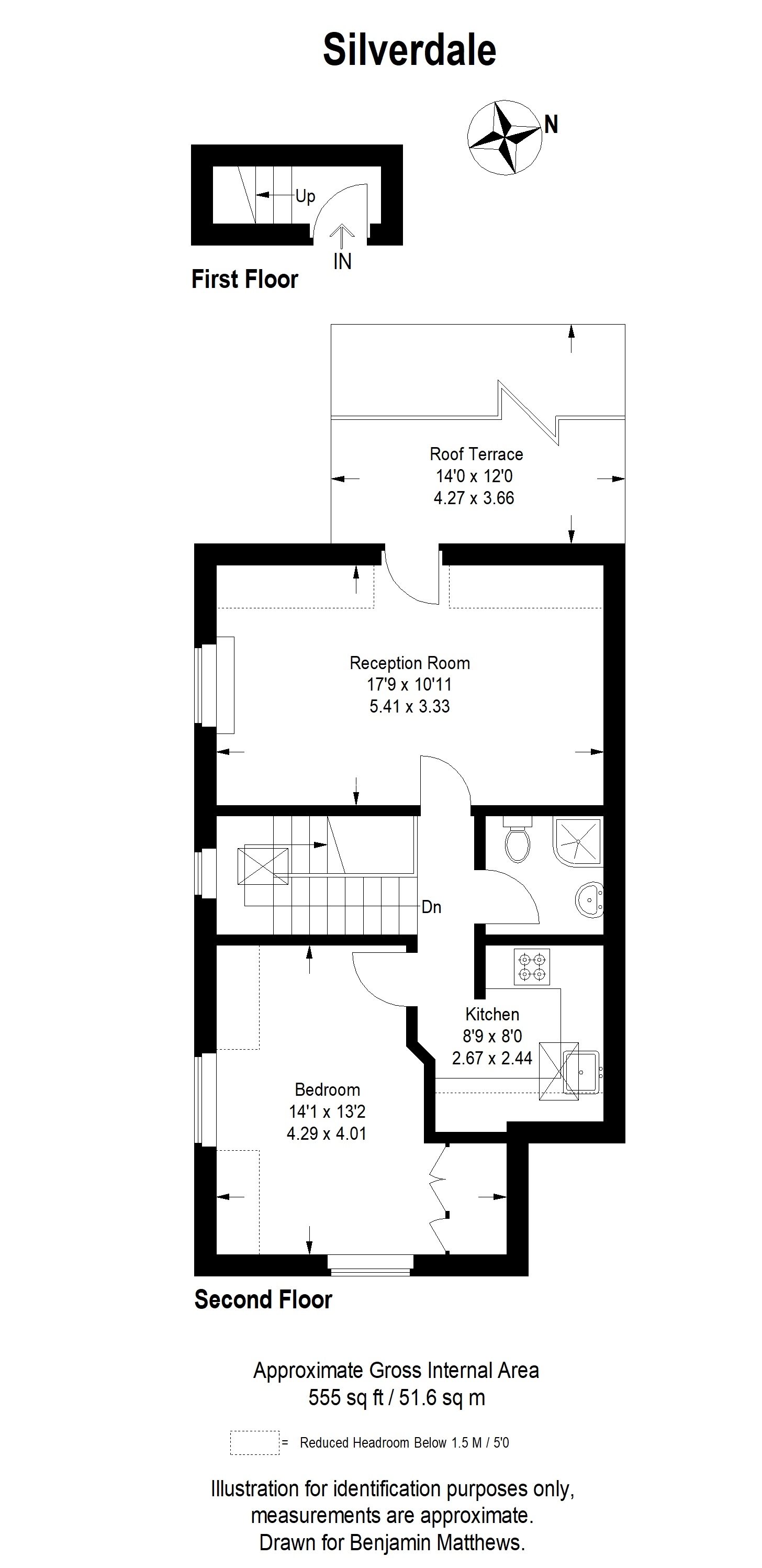
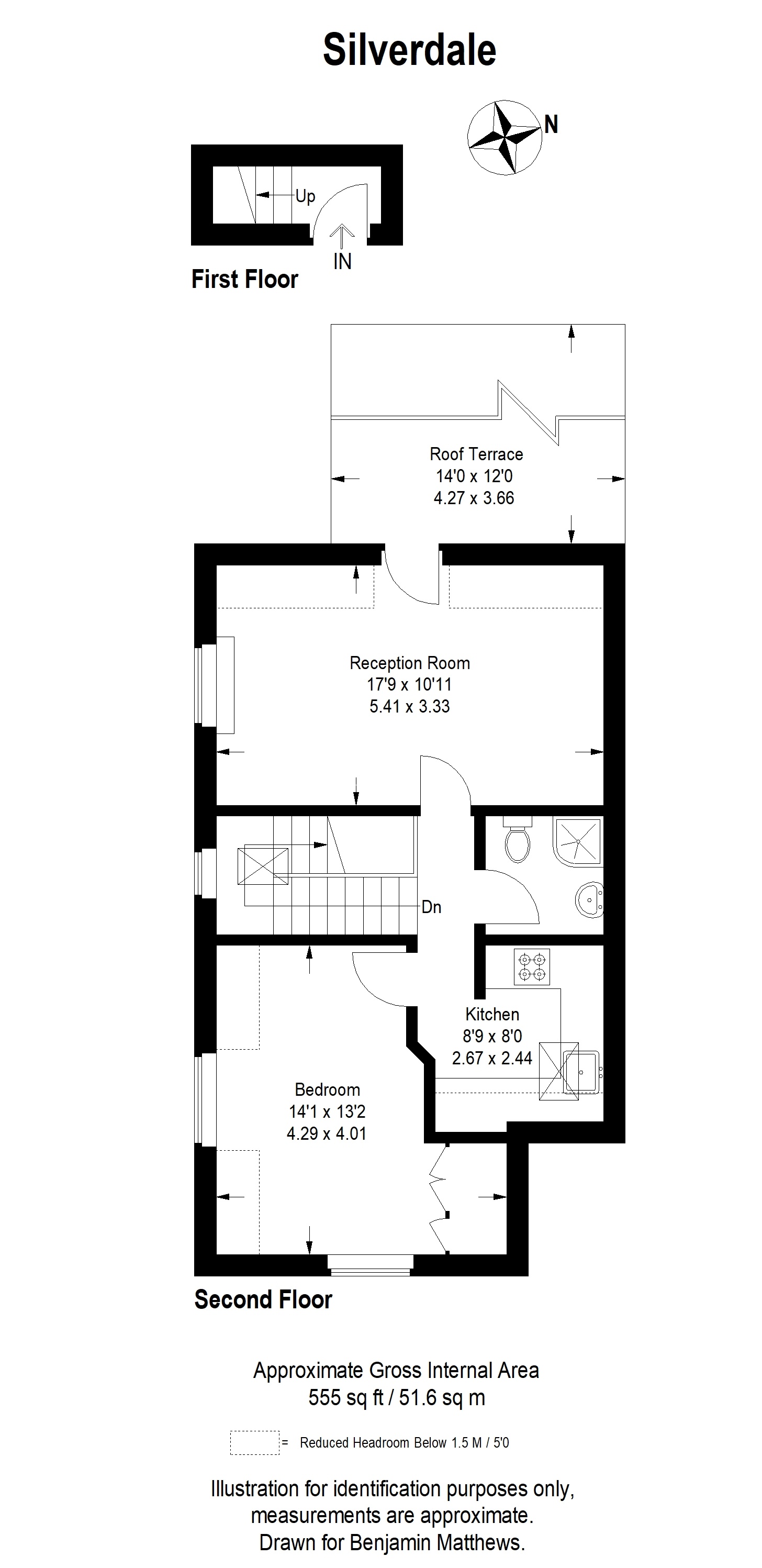
  • One Bedroom Top Floor Flat
  • Private Roof Terrace
  • Close to Sydenham and Forest Hill Stations
  • Close to Mayow Park
  • Available 1st December
  • Modern Kitchen
  • 555 Sq Ft
  • Modern Bathroom
  • Energy Rating C

A one bedroom top floor Victorian conversion has an amazing private west facing roof terrace, located on a sought after road just a short walk away from both Forest Hill and Sydenham stations

In good condition throughout, the property comprises of an entrance hallway and staircase to the top floor, a lounge with access to the roof terrace, a spacious bedroom with built in wardrobes, a modern fitted kitchen and a modern bathroom suite. The roof terrace which measures 14ft x 12ft is a perfect space for relaxing and entertaining and offers great views towards Forest Hill. 

Other features to note are the new boiler with a five year warranty fitted in 2022, and the property had a new insulated roof three years ago. 

Available from 1st December.

Silverdale is a popular street and the property is located very close to the green open space of Mayow Park. Being situated between both Sydenham and Forest Hill stations, it's a great spot for anyone needing to commute in to London and offers a wide choice of cafes, bars and restaurants being so close to both town centers. 

Energy Rating E

Council Tax Band B


Rent affordability

Based on a monthly rental price of £1,500 you'd need an income of * per month or * per annum.

If a guarantor is required, they'll need an income of * per annum.

Further details

  • Tenant information
  • Status: Let
  • Council tax band: B
  • Deposit: £1,730
  • Size: 555 sq ft (51 .56 sq m)
  • Outside spaces: Roof Terrace
  • Reference: 19029

Location