Sold STC
Guide Price £850,000

5 bed terraced house for sale in Lutwyche Road, London, SE6 4EP (ref: 995619)

Shortlist

Key features

  • Five Bedroom Family Home
  • 1642 Sq Ft
  • Full Of Original Features
  • 68ft South West Facing Garden
  • Borders of Forest Hill and Catford
  • Loft Extended
  • Full Width Rear Extension
  • EPC Rating D
  • Council Tax Band D

Located on a sought after residential street on the borders of Forest Hill and Catford and close to Kilmorie and Rathfern Primary schools, this five bedroom Victorian family home is full of original features and is offered in great condition throughout.

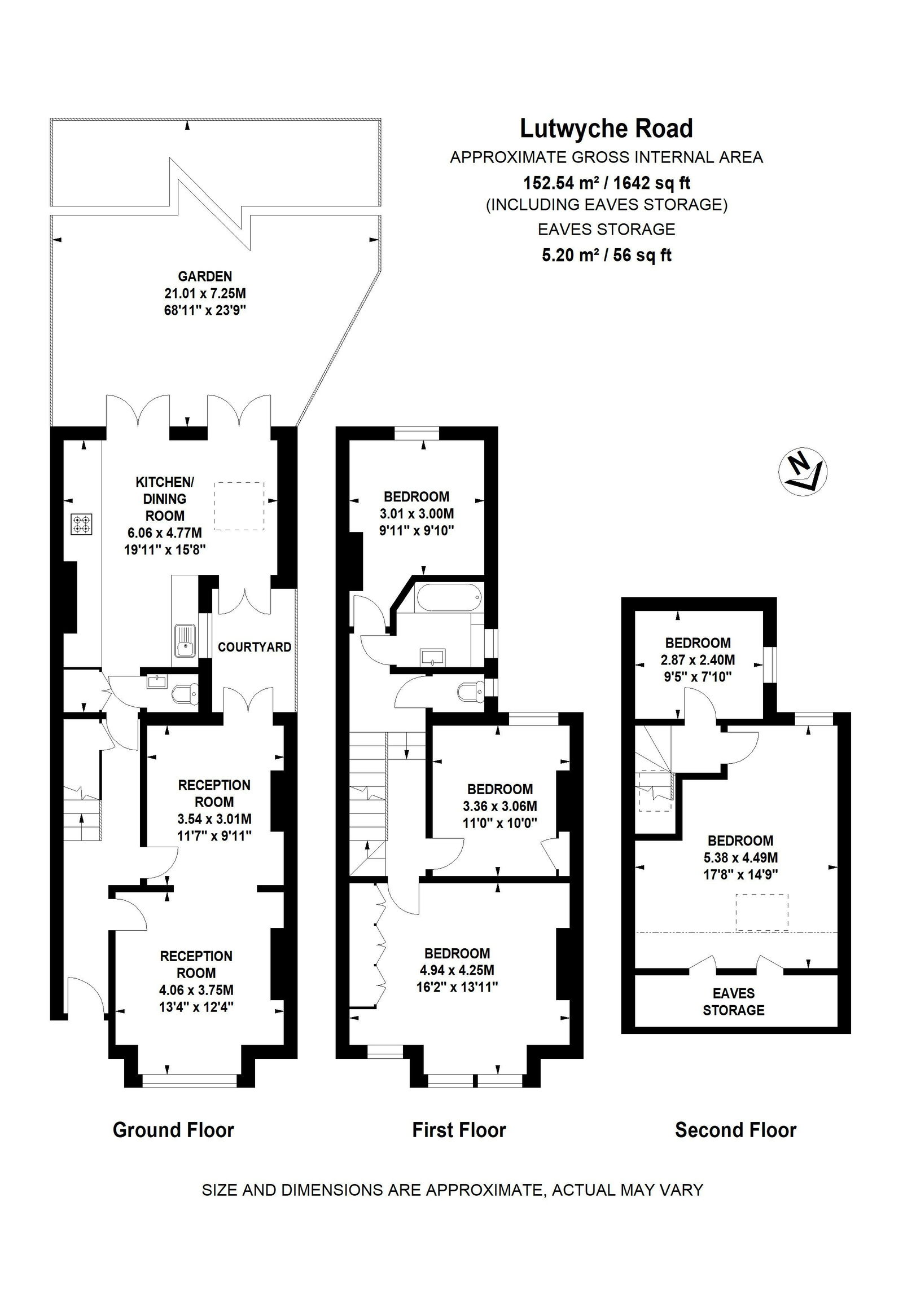
The property has been extended in to the loft space as well as at the rear, and offers 1642 sq ft if internal living space, plus a 68ft South West facing garden at the rear.

The accommodation comprises an open plan lounge and dining room measuring 25ft in length, with with two feature fireplaces, ornate cornicing and celling roses. The kitchen at the rear has been tastefully extended and is flooded with natural light from two sets of rear double doors, and a large skylight over the vaulted ceiling. There is also a ground floor W.C.

On the first floor there are three double bedrooms, the larger having built in wardrobes and a bay window to the front, a modern family bathroom suite and a separate W.C.

On the second floor, the well designed loft extension has two further bedrooms and access to eaves storage.

At the rear of the house, the garden has a paved seating area leading to the lawn which is wider than most on the street.

Freehold

EPC Rating D

Council Tax Band


Download brochure

Stamp duty due

Based on a sale price of £850,000 the total amount of stamp duty payable will be:

*

Last updated: The calculator has been updated to reflect changes in stamp duty following the Autumn Budget on 30th October 2024 for April 1st 2025 onwards.

* This value is based on the standard rate and not applicable to first-time buyers or buy-to-let / second home buyers.

Further details

  • Status: Sold STC
  • Size: 1642 sq ft (152 .55 sq m)
  • Council tax band: D
  • Tenure: Freehold
  • Outside spaces: Private Garden
  • Reference: 995619

What else you need to know?

  • Electricity supply: Mains supply
  • Heating supply: Mains gas
  • Sewerage: Mains supply
  • Water supply: Mains supply

Location